RÉNOVATION COMPLÈTE D’UN APPARTEMENT
Localisation : Marseille (13)
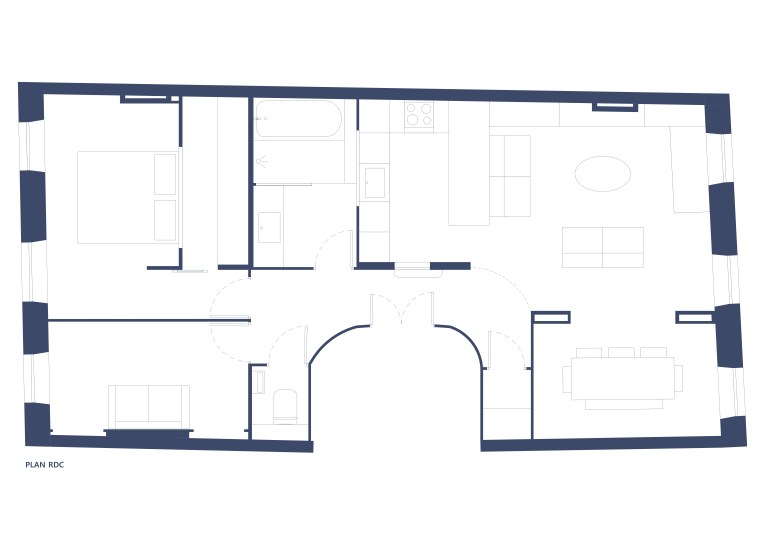
Surface : 75 m2
Mission : Complète
Statut : Livré 2023
Photos : BCDF Studio
RÉNOVATION COMPLÈTE D’UN APPARTEMENT
Localisation : Marseille (13)
Surface : 75 m2
Mission : Complète
Statut : Livré 2023
Photos : BCDF Studio