Aller au contenu principal

  • Accueil
  • AGENCE
  • Projets
  • Contact

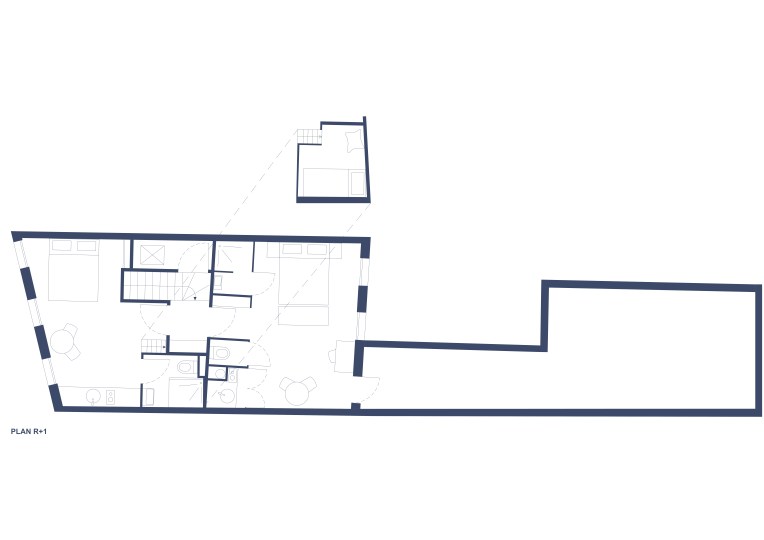
PROVIDENCE

Architecture intérieure, logements neufs, logements renovation

RENOVATION LOURDE ET EXTENSION BOIS D’UNE MAISON

Localisation : Toulouse (31)

Surface : 160 m2

Mission : Complète

Statut : Livré 2021

Similaire

Plus de projets

  • SEBASTOPOL

    SEBASTOPOL

  • PROVIDENCE

    PROVIDENCE

  • POIVRIERES

    POIVRIERES

Site Web créé avec WordPress.com.
    • studio-terazur.com
    • S’inscrire
    • Connexion
    • Copier lien court
    • Signaler ce contenu
    • Gérer les abonnements