Aller au contenu principal

  • Accueil
  • AGENCE
  • Projets
  • Contact

MICHEL GACHET

Architecture intérieure, logements renovation

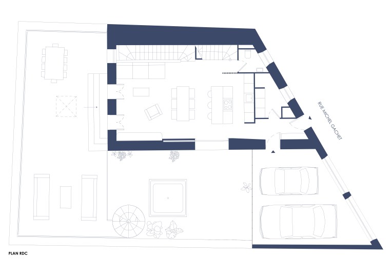
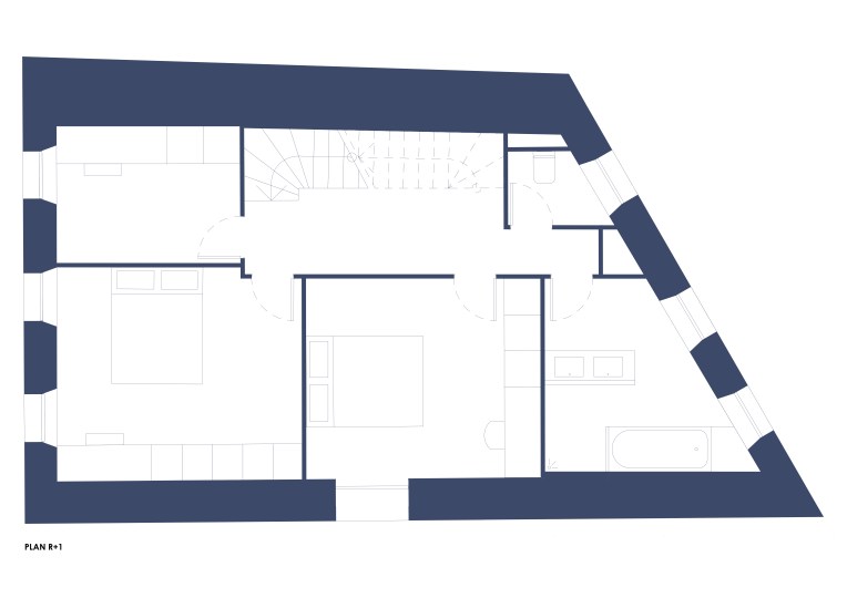
RENOVATION LOURDE D’UNE MAISON

Localisation : Marseille (13)

Surface : 210 m2

Mission : Complète

Statut : En cours

Similaire

Plus de projets

  • MIREILLE

    MIREILLE

  • MICHEL GACHET

    MICHEL GACHET

  • st charles

    st charles

Site Web créé avec WordPress.com.
    • studio-terazur.com
    • S’inscrire
    • Connexion
    • Copier lien court
    • Signaler ce contenu
    • Gérer les abonnements